LOGIN
HOME
CATEGORIES
UPLOAD FILE
PRICING
HOUSE PLAN
ABOUT US
CONTACT US
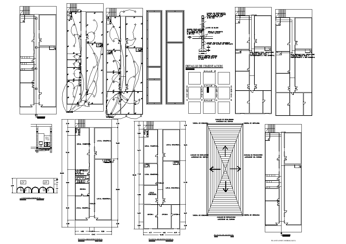
Commercial center in autocad format, dwg file
Home
Categories
Architecture
Corporate Building
Commercial center in autocad format, dwg file
Uploaded by:
Poonam
View Profile
View Profile
Description
Commercial center dwg file. with foundation section plan, column section detail, technical specifications, main entry gate, construction plan etc autocad format.
File Type:
DWG
File Size:
193 KB
Category::
Architecture
Sub Category::
Corporate Building
type:
Gold
Uploaded by:
Poonam
View Profile
Download
Add to libary
find Latest
Related
Files