LOGIN
HOME
CATEGORIES
UPLOAD FILE
PRICING
HOUSE PLAN
ABOUT US
CONTACT US
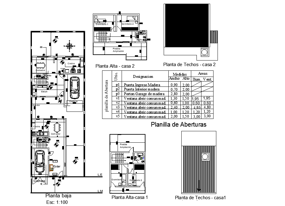
Two houses on a plot layout file
Home
Categories
Architecture
Hotels and Restaurants
Two houses on a plot layout file
Uploaded by:
Dhara
View Profile
View Profile
Description
Two houses on a plot layout file, scale 1:100 detail, diemnsion detail, north direction detail, car parking detail, levelign detail, etc.
File Type:
DWG
File Size:
574 KB
Category::
Architecture
Sub Category::
Hotels and Restaurants
type:
Gold
Uploaded by:
Dhara
View Profile
Download
Add to libary
find Latest
Related
Files