LOGIN
HOME
CATEGORIES
UPLOAD FILE
PRICING
HOUSE PLAN
ABOUT US
CONTACT US
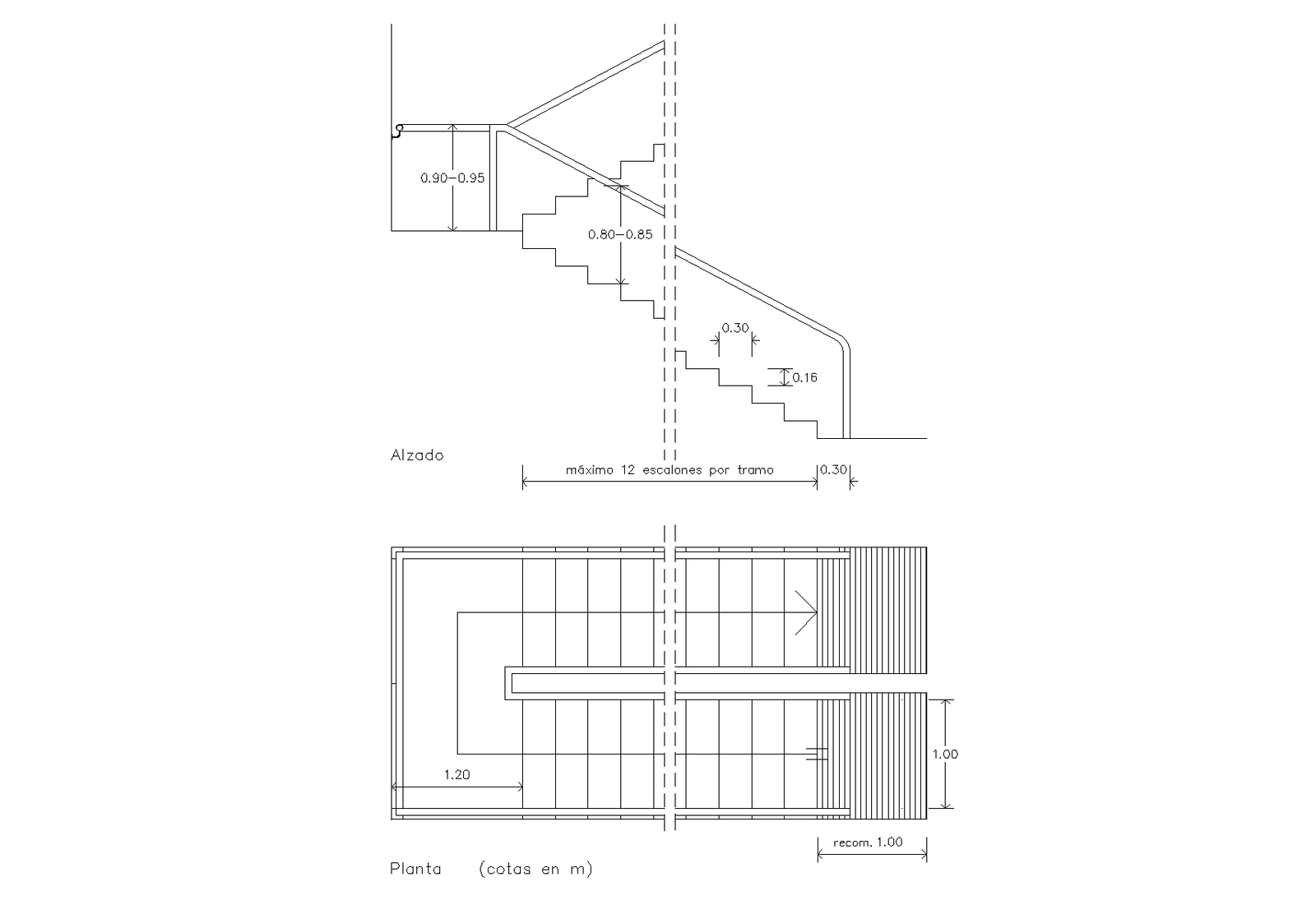
Disabilities stairway plan detail dwg file.
Home
Categories
Details
Structural Steel Drawings
Disabilities stairway plan detail dwg file.
Uploaded by:
Liam
White
View Profile
View Profile
Description
Disabilities stairway plan. The top view plan with an elevation of dimension detail, railing, maximum steps per section, etc.,
File Type:
DWG
File Size:
10 KB
Category::
Details
Sub Category::
Structural Steel Drawings
type:
Gold
Uploaded by:
Liam
White
View Profile
Download
Add to libary
find Latest
Related
Files