Home planning detail autocad file

Home planning detail autocad file
Profile

Uploaded by:

Dhara

Description
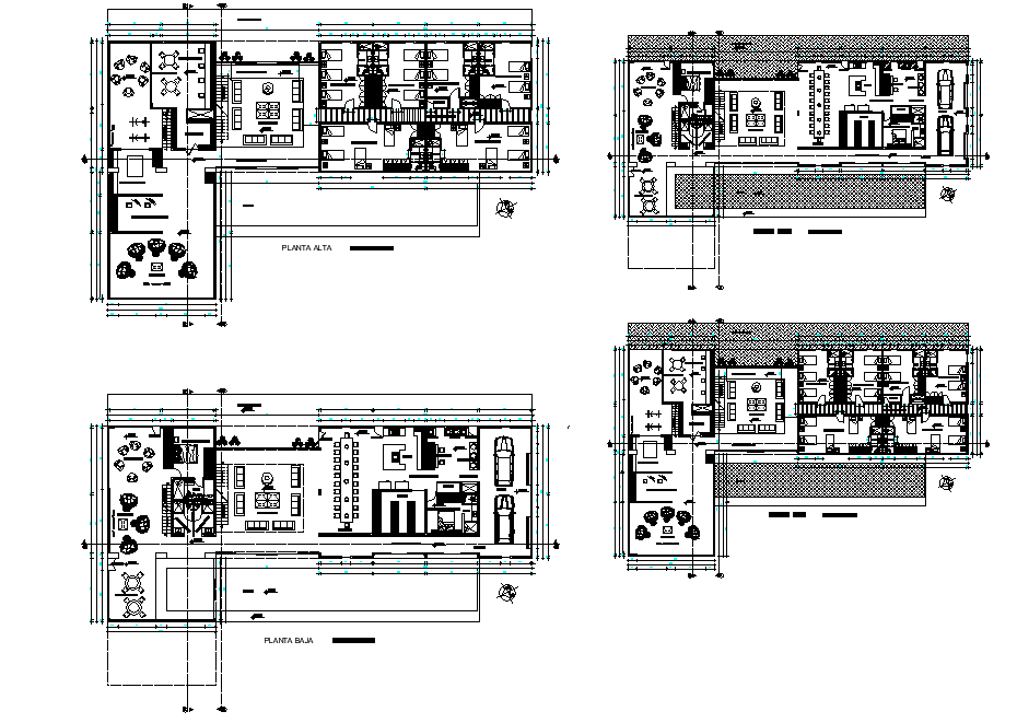
Home planning detail autocad file, section lien detail, dimension detail, naming detail, furniture detail in table, chair, door, window, sofa and bed detail, north direction detail, etc.
Profile

Uploaded by:

Dhara

find Latest

Related Files

WhatsApp Chat