LOGIN
HOME
CATEGORIES
UPLOAD FILE
PRICING
HOUSE PLAN
ABOUT US
CONTACT US
Wall section plan detail dwg file
Home
Categories
Details
Construction Details
Wall section plan detail dwg file
Uploaded by:
Dhara
View Profile
View Profile
Description
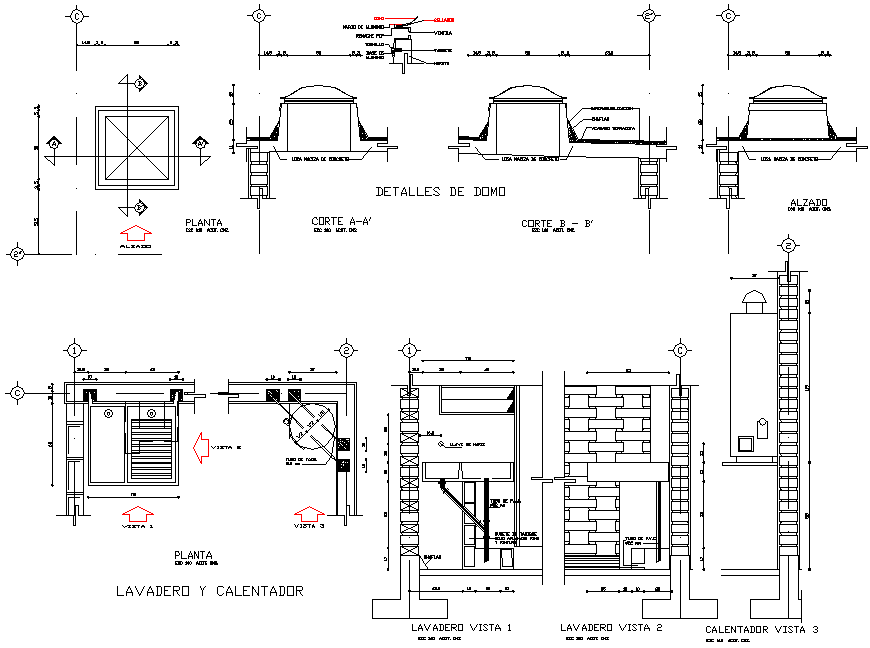
Wall section plan detail dwg file, centre lien detail, dimension detail, naming detail, brick wall detail, section A-A’ detail, section B-B’ detail, cut out detail, etc.
File Type:
DWG
File Size:
1.9 MB
Category::
Details
Sub Category::
Construction Details
type:
Gold
Uploaded by:
Dhara
View Profile
Download
Add to libary
find Latest
Related
Files