Project multi-family housing high-density plan detail dwg.
Description
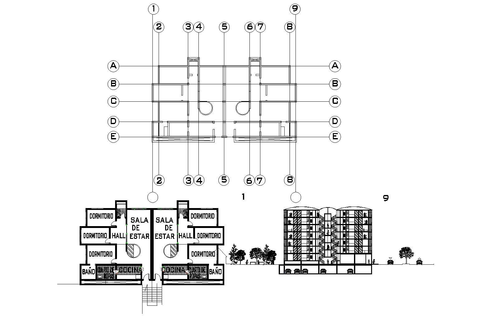
Project multi-family housing high-density plan. The front view plan with detailing of living room area, bed room area, dimension detail, etc.,

Uploaded by:
Liam
White

Uploaded by:
White