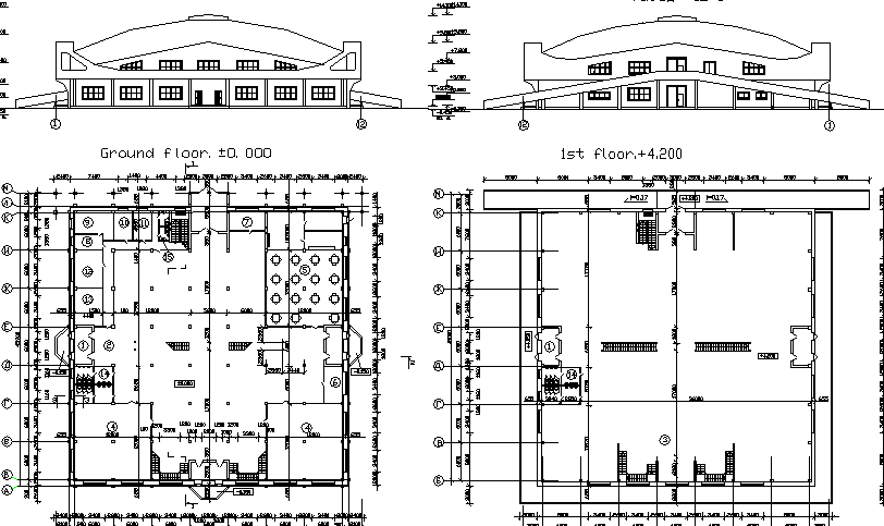
Pavilion shopping center elevation and floor plan layout details dwg file
Description
Pavilion center elevation and floor plan layout details dwg file.
Pavilion center elevation and floor plan layout details that includes a detailed view of front elevation view, back elevation view, flooring view, doors and windows view, floor plan details with landscaping view, car parking view, tree view, green area, main entry and exit gate, elevators and staircase, shops and showrooms, cafeteria, branded shops, education center, fun zone, chocolate room, departmental stores, food stores, fun points and much more of shopping center project.
Uploaded by:

