Floor plan layout details of government office building dwg file
Description
Floor plan layout details of government office building dwg file
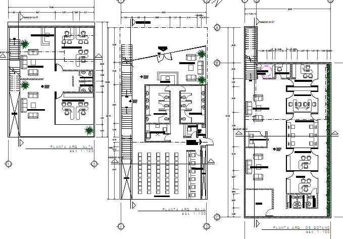
Floor plan layout details of government office building that includes a detailed view of ground first and top floor, waiting area, reception area, offices, departmental offices, dining area, conference hall, sanitary facilities, front desk, meeting room and much more of building floor plan.
Uploaded by:

