Office and shopping mall building layout plan details dwg file
Description
Office and shopping mall building layout plan details dwg file.
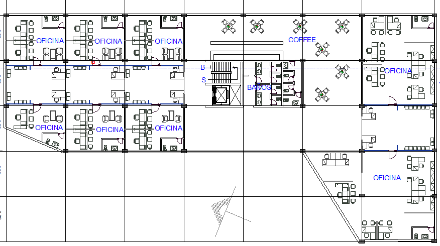
Office and shopping mall building layout plan details that includes a detailed view of main entry and exit gate, shops and showrooms, offices, cafeteria, sanitary facilities and much more of office building layout.
Uploaded by:

