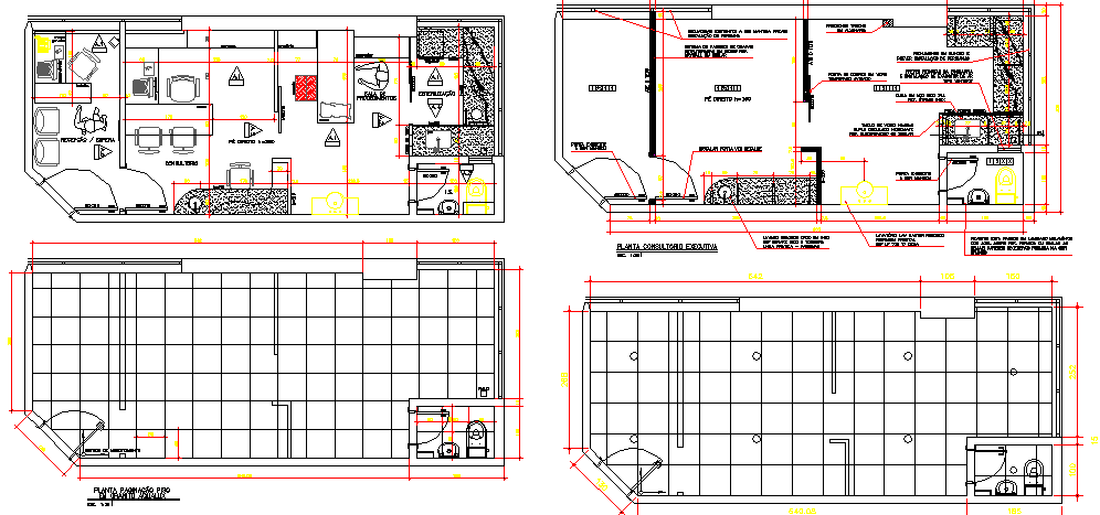
Floor plan layout details of media office building dwg file
Description
Floor plan layout details of media office building dwg file.
Floor plan layout details of media office building that includes a detailed view of ground floor, first floor, with main entry and exit gate, waiting area, reception area, front desk, general hall, passage, employee desk, offices, head offices, conference hall, meeting room, dining area, sanitary facilities and much more of office floor plan.
Uploaded by:

