LOGIN
HOME
CATEGORIES
UPLOAD FILE
PRICING
HOUSE PLAN
ABOUT US
CONTACT US
Office Floor Plan In DWG File
Home
Categories
Architecture
Corporate Building
Office Floor Plan In DWG File
Uploaded by:
Dhara
View Profile
View Profile
Description
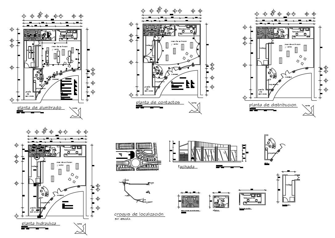
Office Floor Plan In DWG File which includes lighting plant, contact plant, Distribution plant, map detail, sanitary services area, office area,
File Type:
DWG
File Size:
578 KB
Category::
Architecture
Sub Category::
Corporate Building
type:
Gold
Uploaded by:
Dhara
View Profile
Download
Add to libary
find Latest
Related
Files