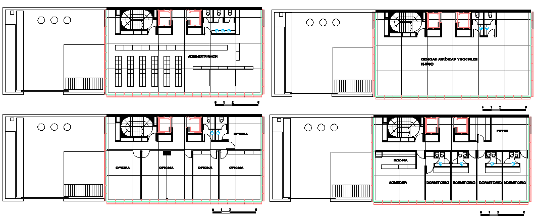
Floor plan layout details of administration building dwg file
Description
Floor plan layout details of administration building dwg file.
Floor plan layout details of administration building that includes a detailed view of ground floor, first floor etc with main entry and exit gate, reception area, waiting area, front desk, departmental offices, sanitary facilities, passage, general hall and much more of building floor plan.
Uploaded by:

