Floor plan and electrical layout plan details of office building dwg file
Description
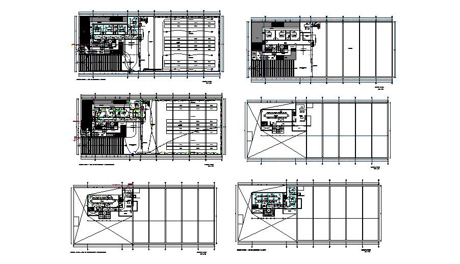
Floor plan and electrical layout plan details of office building that includes a detailed view of reception area, waiting area, cabin, bottom false ceiling, computer lab, bottom of grid ceiling, counselling room and library, conference room, manager cabin, meeting room, cleaning department, departmental office, smoking area, head offices, accountant rooms, pantry, kitchen, dining area, server room, meeting room, pantry, power layout details, lighting layout details, computation and schedule of loads, general notes and specifications, panel board details and much more of office details.
Uploaded by:

