Dynamic restaurant furniture layout and plan details dwg file
Description
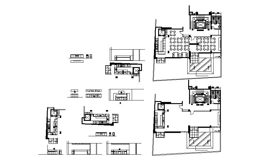
Dynamic restaurant furniture layout and plan details that includes a detailed view of dimensions, roof or terrace view, car parking view with reception area, waiting lounge, dining area, banquaet hall, kitchen, cleaning department, staff room, sanitary facilities, furniture details, interior details and much more of restaurant project.
Uploaded by:

