Hospital floor layout plan and framing plan cad drawing details dwg file
Description
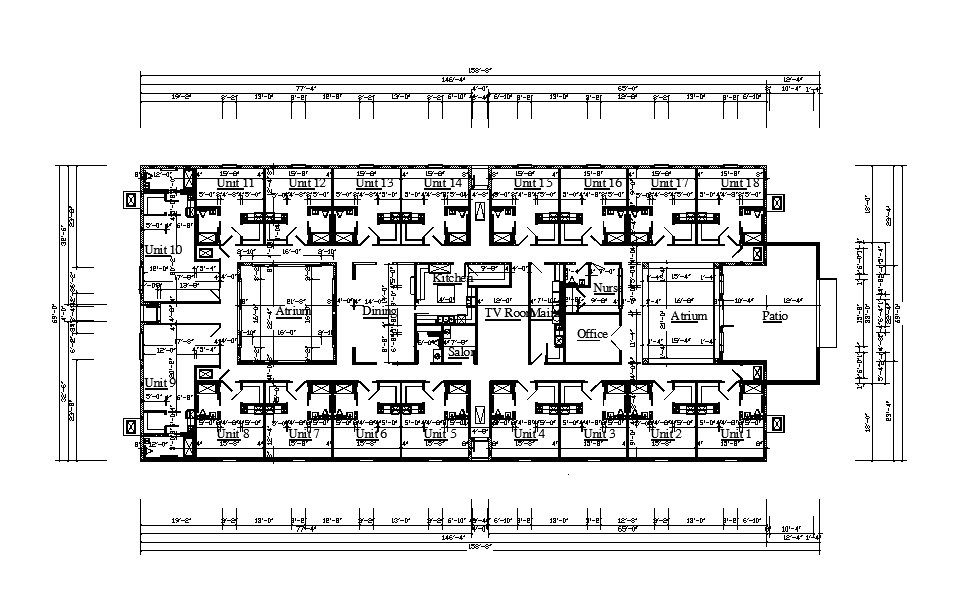
Hospital floor layout plan and framing plan cad drawing details that includes a detailed view of wood posts, joints, decking, grider pre-engineering, steel pipe column, play joints, existing floor joints, knee wall, steel pipe column, beam schedule details, dimensions details, measures, reception area, waiting area, consultant room, specialized departments, operation theater, cleaning departments, pharmacy stores, special and general ward, specimen collection, emergency laboratory, imagenology, laboratories, circumbulatory, waiting rooms, sanitary man, duct, central nursing, sanitary, x-ray, tomography, mastography and desitography, rest area and sanitary, development and printing and much more of hospital details.
Uploaded by:

