Multi-family town house building elevation and section cad drawing details dwg file
Description
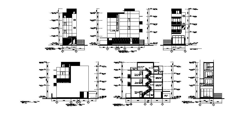
Multi-family town house building elevation and section cad drawing details that includes a detailed view of facade back and side elevations and section details with flooring view, doors and windows view, staircase sectional details, balcony view, wall sections and dimensions details, car parking floor, tree view, wall design and much more of house building project.
Uploaded by:

