LOGIN
HOME
CATEGORIES
UPLOAD FILE
PRICING
HOUSE PLAN
ABOUT US
CONTACT US
Foundation Drawing In AutoCAD File
Home
Categories
Structure
Footing Detail
Foundation Drawing In AutoCAD File
Uploaded by:
Eiz
Luna
View Profile
View Profile
Description
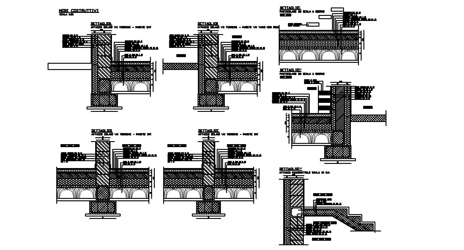
Foundation Drawing In AutoCAD File which provide detail dimension of a staircase, detail of reinforcement bar, concrete details, details of different section,
File Type:
DWG
File Size:
2.8 MB
Category::
Structure
Sub Category::
Footing Detail
type:
Gold
Uploaded by:
Eiz
Luna
View Profile
Download
Add to libary
find Latest
Related
Files