LOGIN
HOME
CATEGORIES
UPLOAD FILE
PRICING
HOUSE PLAN
ABOUT US
CONTACT US
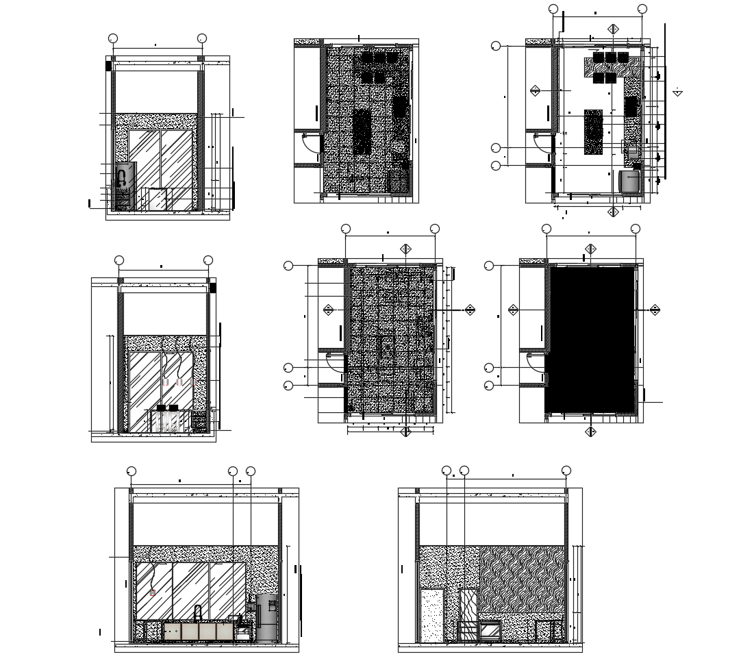
Kitchen layout with sections in autocad
Home
Categories
Architecture
House Plan
Kitchen layout with sections in autocad
Uploaded by:
K.H.J
Jani
View Profile
View Profile
Description
Kitchen layout with sections in autocad it include furniture layout, ground floor plan,floor plan, electrical layout,sections etc
File Type:
DWG
File Size:
1.2 MB
Category::
Architecture
Sub Category::
House Plan
type:
Gold
Uploaded by:
K.H.J
Jani
View Profile
Download
Add to libary
find Latest
Related
Files