LOGIN
HOME
CATEGORIES
UPLOAD FILE
PRICING
HOUSE PLAN
ABOUT US
CONTACT US
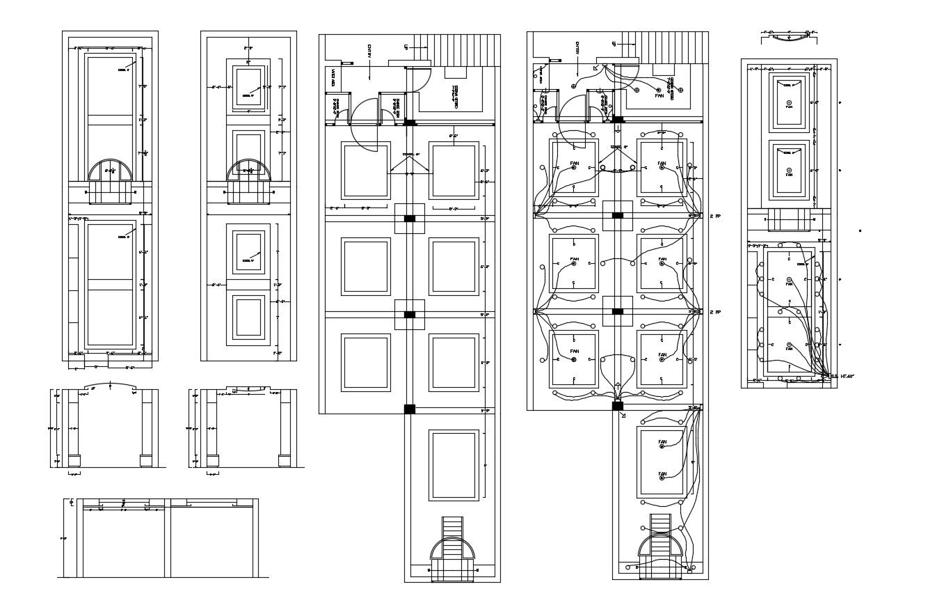
Dwg file of electrical layout
Home
Categories
Electrical
Interior Design Electrical
Dwg file of electrical layout
Uploaded by:
K.H.J
Jani
View Profile
View Profile
Description
Dwg file of electrical layout it include ceiling layout, ac layout, electrical layout, wall point, ceiling point,etc
File Type:
DWG
File Size:
552 KB
Category::
Electrical
Sub Category::
Interior Design Electrical
type:
Gold
Uploaded by:
K.H.J
Jani
View Profile
Download
Add to libary
find Latest
Related
Files