LOGIN
HOME
CATEGORIES
UPLOAD FILE
PRICING
HOUSE PLAN
ABOUT US
CONTACT US
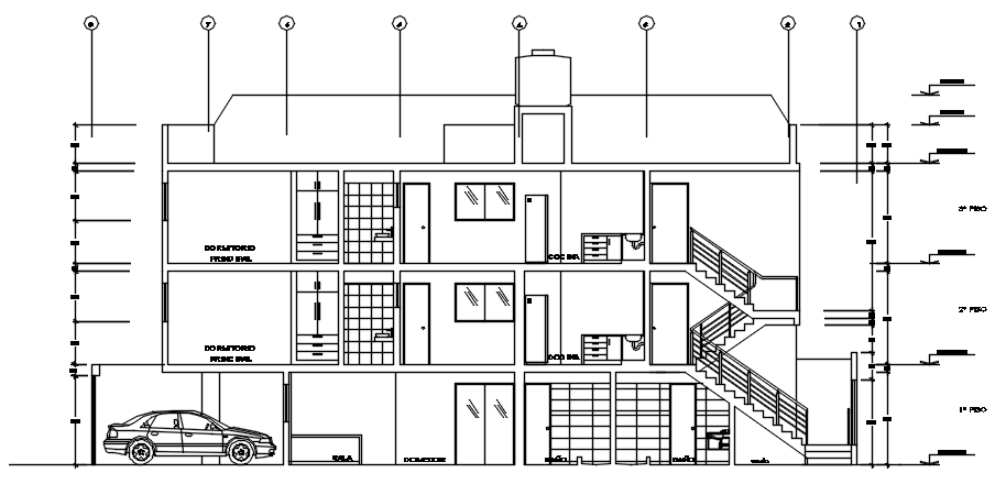
Section drawing of the apartment in AutoCAD
Home
Categories
Architecture
Apartment Drawing
Section drawing of the apartment in AutoCAD
Uploaded by:
Eiz
Luna
View Profile
View Profile
Description
Section drawing of the apartment in AutoCAD which provide detail of floor level, room, kitchen, doors, and windows, detail of parking area, etc.
File Type:
DWG
File Size:
541 KB
Category::
Architecture
Sub Category::
Apartment Drawing
type:
Gold
Uploaded by:
Eiz
Luna
View Profile
Download
Add to libary
find Latest
Related
Files