LOGIN
HOME
CATEGORIES
UPLOAD FILE
PRICING
HOUSE PLAN
ABOUT US
CONTACT US
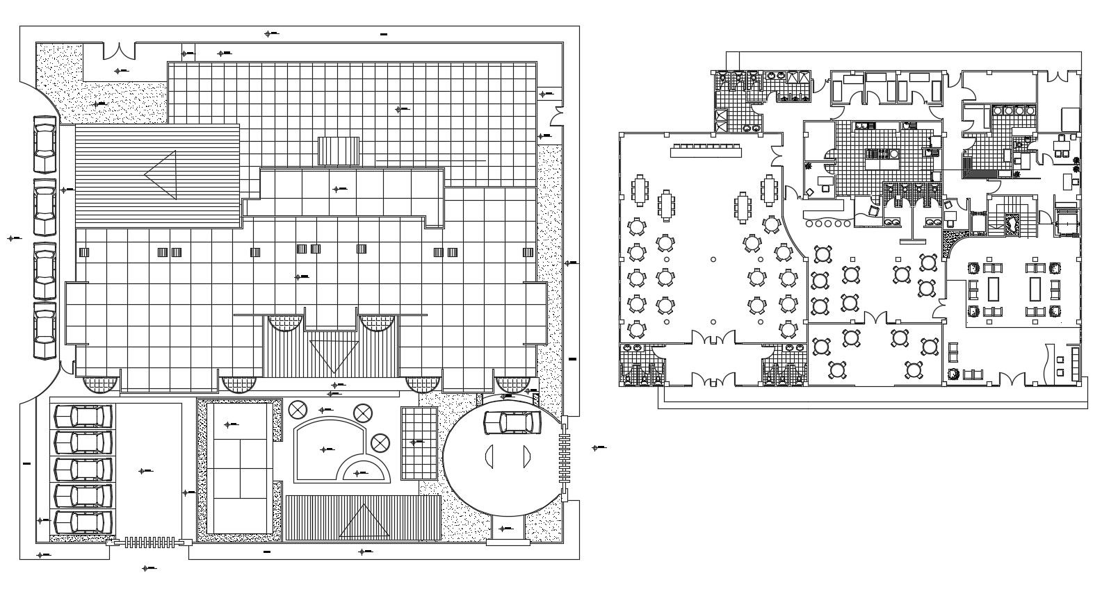
Restaurant drawing in dwg file
Home
Categories
Architecture
Hotels and Restaurants
Restaurant drawing in dwg file
Uploaded by:
K.H.J
Jani
View Profile
View Profile
Description
Restaurant drawing in dwg file it include ground floor layout,parking area it also include seating area,garden area,kitchen area,toilets,etc
File Type:
DWG
File Size:
4.2 MB
Category::
Architecture
Sub Category::
Hotels and Restaurants
type:
Gold
Uploaded by:
K.H.J
Jani
View Profile
Download
Add to libary
find Latest
Related
Files