School equipment design
Description
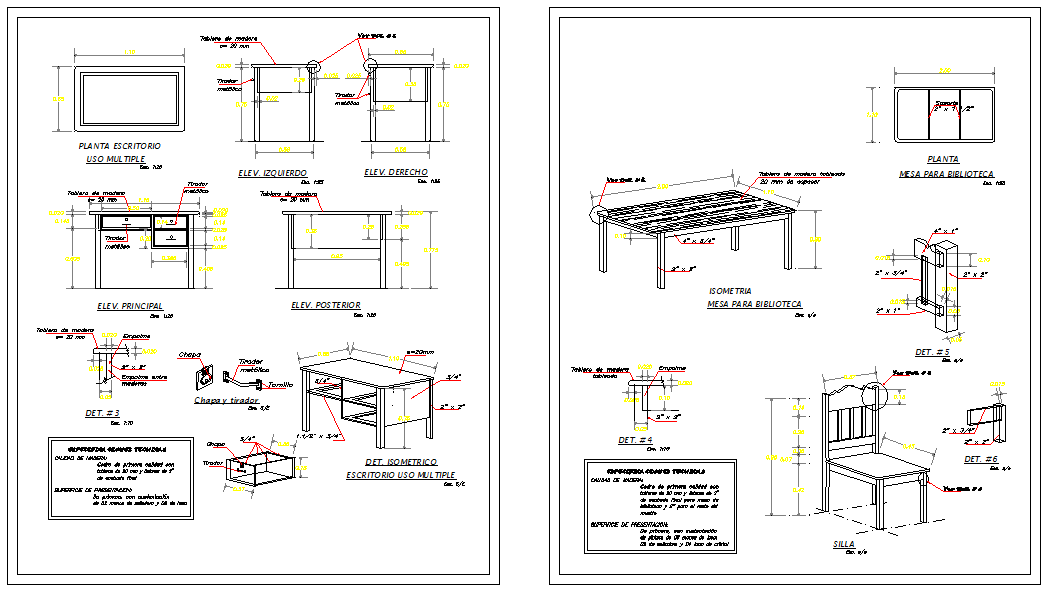
School equipment design Download file, School equipment design Detail file. It is taken during primary and secondary education and encourages psychomotor learning in a play or movement exploration setting to promote health.

Uploaded by:
john
kelly
