LOGIN
HOME
CATEGORIES
UPLOAD FILE
PRICING
HOUSE PLAN
ABOUT US
CONTACT US
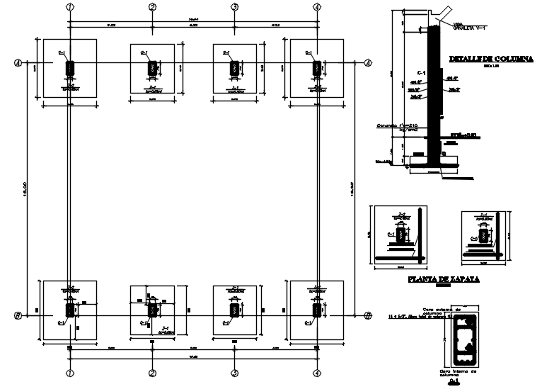
Foundation plan with detail dimension in dwg file
Home
Categories
Structure
Footing Detail
Foundation plan with detail dimension in dwg file
Uploaded by:
Eiz
Luna
View Profile
View Profile
Description
Foundation plan with detail dimension in dwg file which includes detail of floor area, detail of column footing, detail of shoe plant, etc.
File Type:
DWG
File Size:
10 MB
Category::
Structure
Sub Category::
Footing Detail
type:
Gold
Uploaded by:
Eiz
Luna
View Profile
Download
Add to libary
find Latest
Related
Files