LOGIN
HOME
CATEGORIES
UPLOAD FILE
PRICING
HOUSE PLAN
ABOUT US
CONTACT US
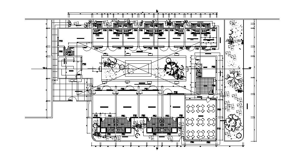
Hotel drawing in Dwg file
Home
Categories
Architecture
Hotels and Restaurants
Hotel drawing in Dwg file
Uploaded by:
K.H.J
Jani
View Profile
View Profile
Description
Hotel drawing in Dwg file it includes ground floor layout, first-floor layout it also includes bedrooms, kitchen, restaurant,toilets,waiting,reception,etc
File Type:
DWG
File Size:
1.1 MB
Category::
Architecture
Sub Category::
Hotels and Restaurants
type:
Gold
Uploaded by:
K.H.J
Jani
View Profile
Download
Add to libary
find Latest
Related
Files