Health center layout plan in AutoCAD

Health center layout plan in AutoCAD
Profile

Uploaded by:

K.H.J

Jani

Description
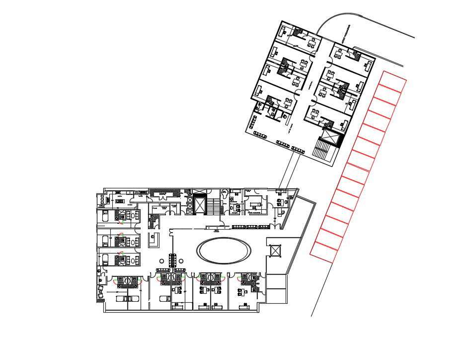
Health center layout plan in AutoCAD it includes detail of furniture layout it also includes reception, waiting, emergency room,opd, doctors cabin, kitchen area, etc
Profile

Uploaded by:

K.H.J

Jani

find Latest

Related Files