Design of House plan with furniture details in dwg file
Description
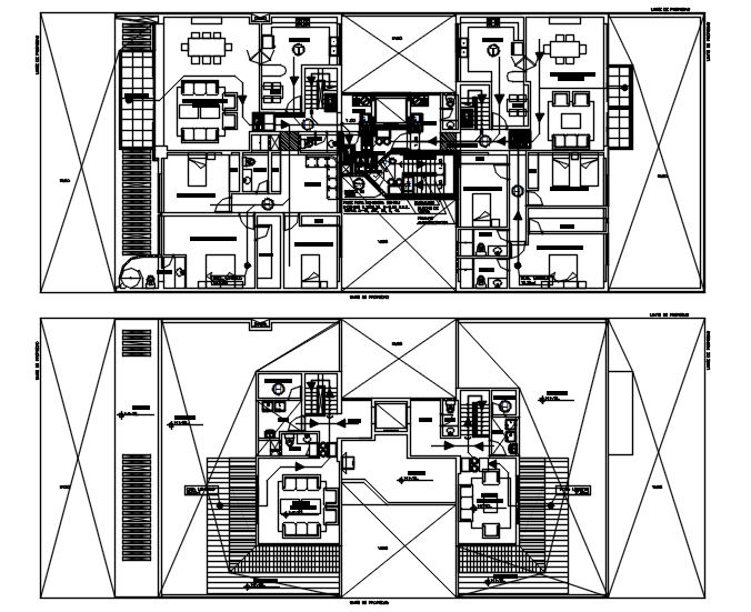
Design of House plan with furniture details in dwg file which includes detail of drawing room, bedroom, kitchen, dining room, bathroom, toilet, etc.

Uploaded by:
Eiz
Luna

Uploaded by:
Luna