Institute layout with a section in dwg file
Description
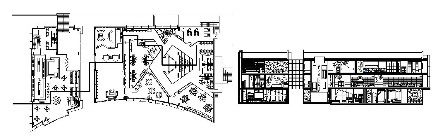
Institute layout with a section in dwg file it includes third-floor layout, section it also includes classroom, student's lockers, kitchen, canteen, admin area, toilets,etc
Uploaded by:
K.H.J
Jani

