LOGIN
HOME
CATEGORIES
UPLOAD FILE
PRICING
HOUSE PLAN
ABOUT US
CONTACT US
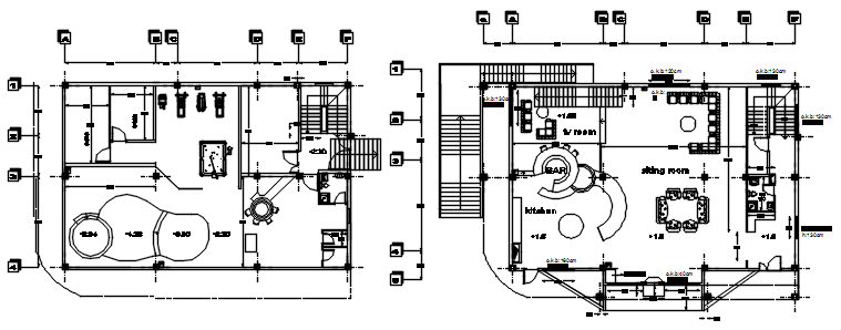
Luxury Modern House Plan In DWG File
Home
Categories
Architecture
House Plan
Luxury Modern House Plan In DWG File
Uploaded by:
Eiz
Luna
View Profile
View Profile
Description
Luxury Modern House Plan In DWG File which provides detail of hall, sitting room, tv room, kitchen, bathroom. It also gives detail of the basement plan.
File Type:
DWG
File Size:
992 KB
Category::
Architecture
Sub Category::
House Plan
type:
Gold
Uploaded by:
Eiz
Luna
View Profile
Download
Add to libary
find Latest
Related
Files