LOGIN
HOME
CATEGORIES
UPLOAD FILE
PRICING
HOUSE PLAN
ABOUT US
CONTACT US
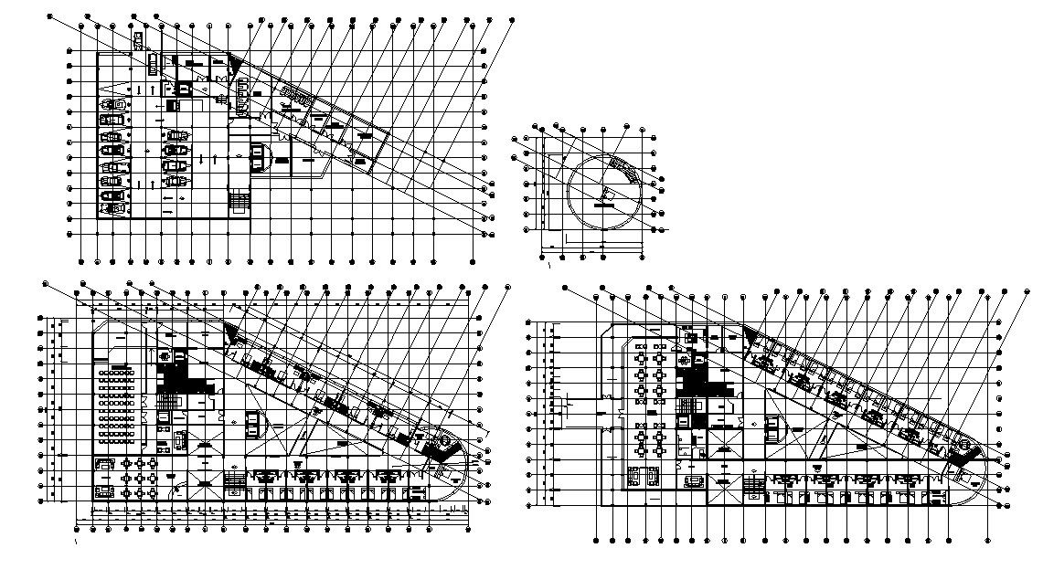
Autocad drawing of hotel layout
Home
Categories
Architecture
Hotels and Restaurants
Autocad drawing of hotel layout
Uploaded by:
K.H.J
Jani
View Profile
View Profile
Description
Autocad drawing of hotel layout it include floor layout, furniture layout it also includes reception area, waiting area, bedrooms, cafe, restaurants,etc
File Type:
DWG
File Size:
2.2 MB
Category::
Architecture
Sub Category::
Hotels and Restaurants
type:
Gold
Uploaded by:
K.H.J
Jani
View Profile
Download
Add to libary
find Latest
Related
Files