Residential House Plan In AutoCAD File
Description
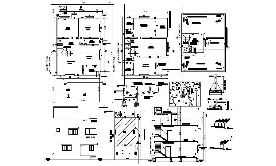
Residential House Plan In AutoCAD File which provides detail of wall section, R.C.C column, key plan, detail dimension of the hall, bedroom, kitchen, dining area, bathroom, toilet, etc it also gives detail of floor level.

Uploaded by:
Eiz
Luna
