Office Building Floor Plan In AutoCAD File
Description
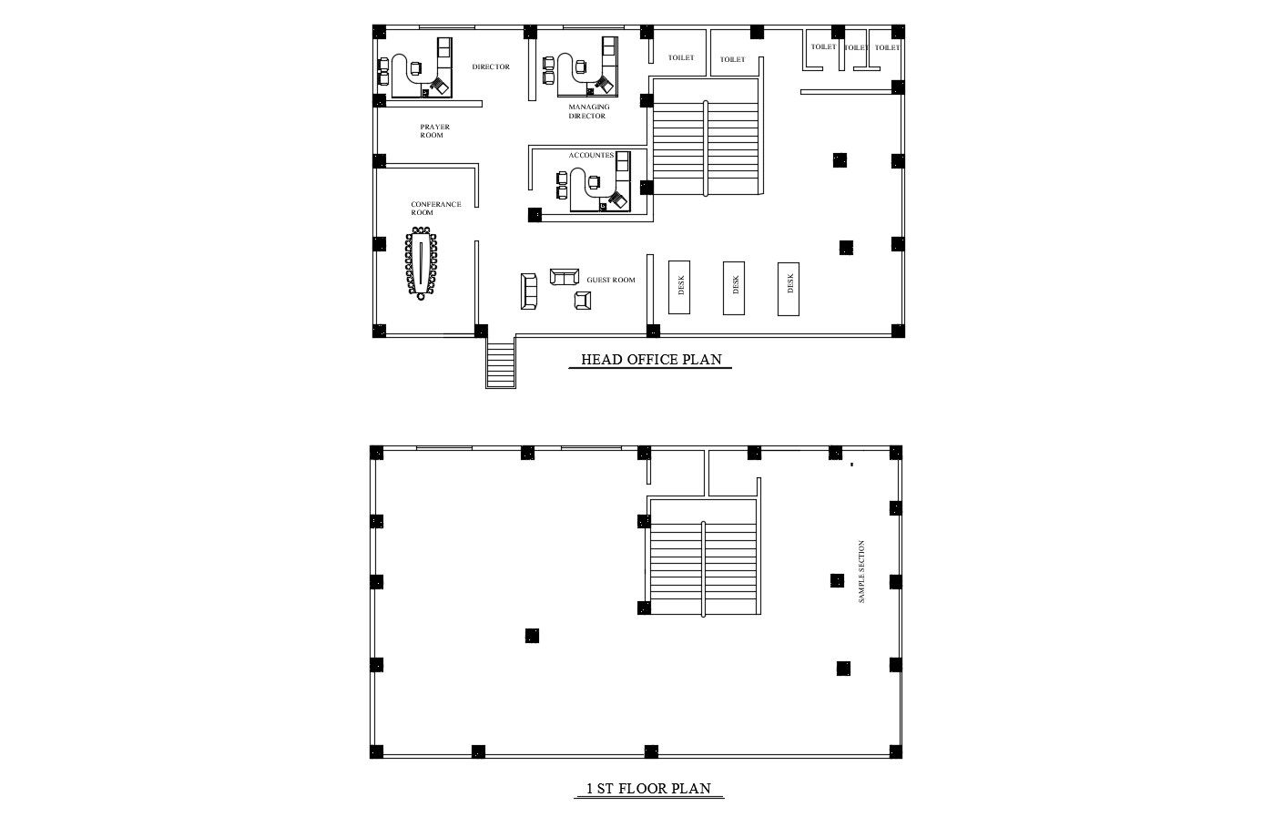
Office Building Floor Plan In AutoCAD File which provides detail of the guest room, conference room, prayer room, director, managing director, toilet, washroom.

Uploaded by:
Eiz
Luna

Uploaded by:
Luna