LOGIN
HOME
CATEGORIES
UPLOAD FILE
PRICING
HOUSE PLAN
ABOUT US
CONTACT US
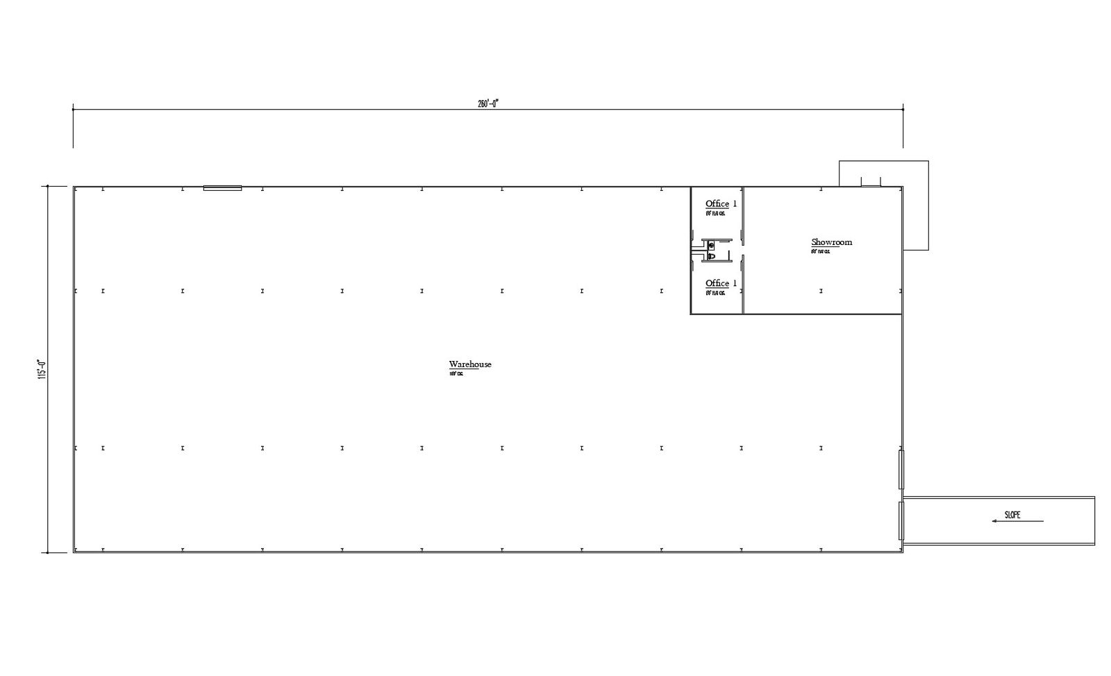
Warehouse Floor Plan In AutoCAD File
Home
Categories
Architecture
Industrial Plant
Warehouse Floor Plan In AutoCAD File
Uploaded by:
Eiz
Luna
View Profile
View Profile
Description
Warehouse Floor Plan In AutoCAD File which provides detail of warehouse area, office area, showroom, slope.
File Type:
DWG
File Size:
403 KB
Category::
Architecture
Sub Category::
Industrial Plant
type:
Gold
Uploaded by:
Eiz
Luna
View Profile
Download
Add to libary
find Latest
Related
Files