LOGIN
HOME
CATEGORIES
UPLOAD FILE
PRICING
HOUSE PLAN
ABOUT US
CONTACT US
Staircase Drawing
Home
Categories
Details
Structural Steel Drawings
Staircase Drawing
Uploaded by:
Eiz
Luna
View Profile
View Profile
Description
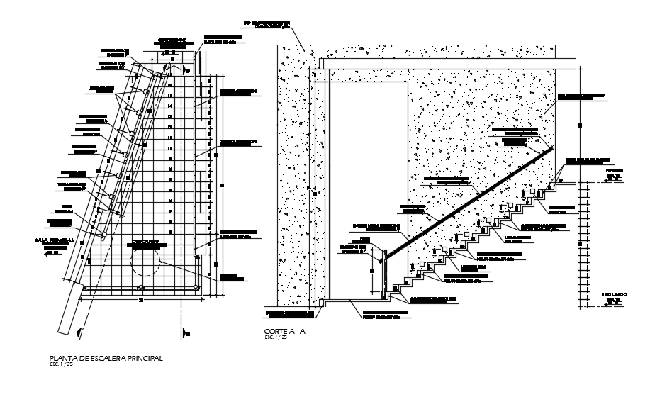
Staircase Drawing includes side elevation design and front view along with all dimension detail AutoCAD format and download staircase plan DWG file.
File Type:
DWG
File Size:
395 KB
Category::
Details
Sub Category::
Structural Steel Drawings
type:
Gold
Uploaded by:
Eiz
Luna
View Profile
Download
Add to libary
find Latest
Related
Files