LOGIN
HOME
CATEGORIES
UPLOAD FILE
PRICING
HOUSE PLAN
ABOUT US
CONTACT US
Design of Footing layout plan in dwg file
Home
Categories
Structure
Footing Detail
Design of Footing layout plan in dwg file
Uploaded by:
Eiz
Luna
View Profile
View Profile
Description
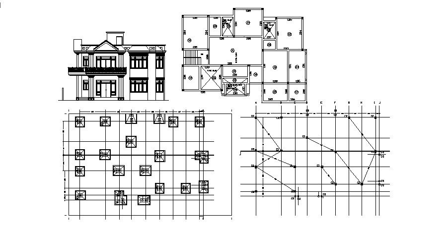
Design of Footing layout plan in dwg file which provides detail of front elevation, detail of slab and beams layout plan, etc.
File Type:
DWG
File Size:
1.1 MB
Category::
Structure
Sub Category::
Footing Detail
type:
Gold
Uploaded by:
Eiz
Luna
View Profile
Download
Add to libary
find Latest
Related
Files