Hotel room floor plans
Description
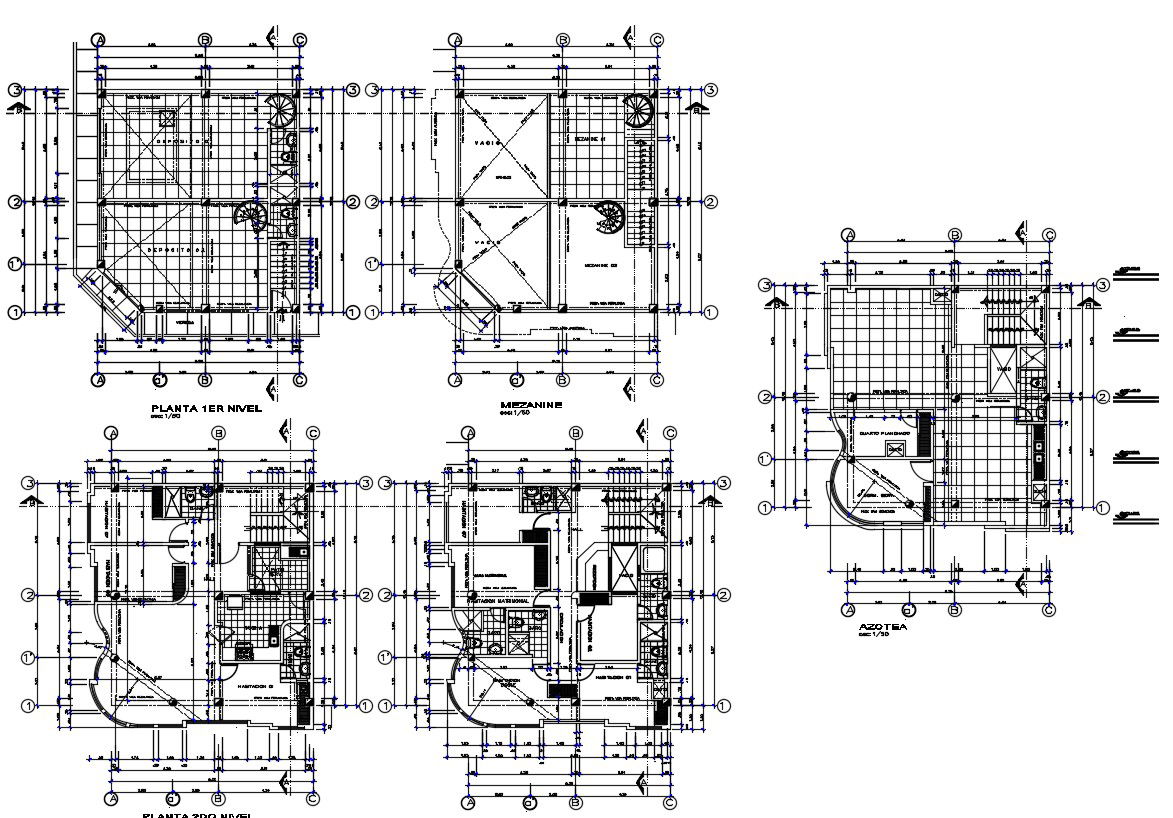
Hotel room floor plans in AutoCAD which shows the different types of floor plan, reception area, rooms, washrooms, kitchen, gate, windows, etc, it also provides the details of floor level.

Uploaded by:
Eiz
Luna

Uploaded by:
Luna