LOGIN
HOME
CATEGORIES
UPLOAD FILE
PRICING
HOUSE PLAN
ABOUT US
CONTACT US
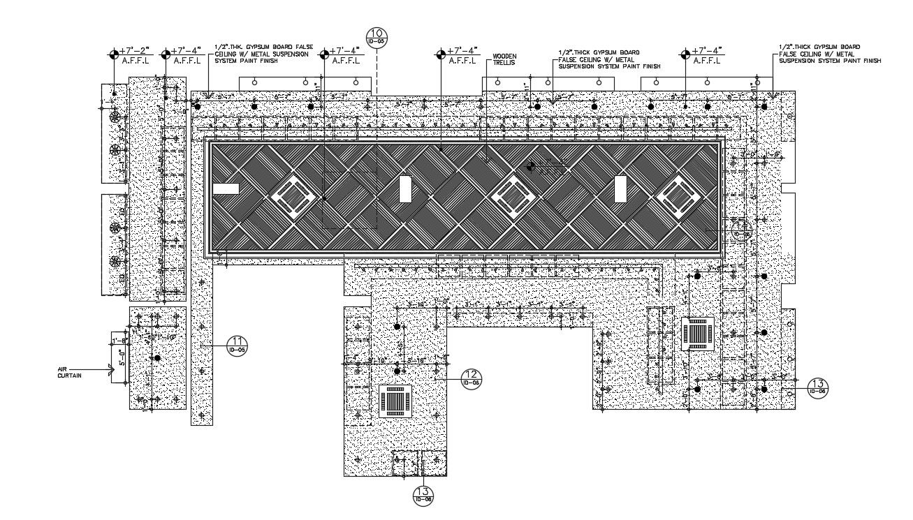
Ceiling layout plan in DWG file
Home
Categories
Architecture
Industrial Plant
Ceiling layout plan in DWG file
Uploaded by:
Eiz
Luna
View Profile
View Profile
Description
Ceiling layout plan in DWG file which includes detail dimension of gypsum board ceiling, wooden trellis, metal suspension system, etc.
File Type:
DWG
File Size:
1.4 MB
Category::
Architecture
Sub Category::
Industrial Plant
type:
Gold
Uploaded by:
Eiz
Luna
View Profile
Download
Add to libary
find Latest
Related
Files