2d corporate building cad file
Description
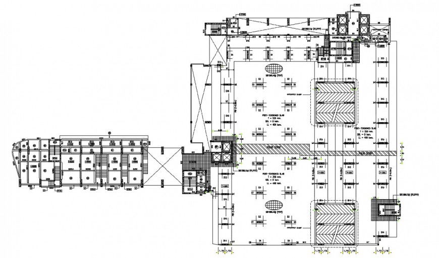
the architecture layout plan of corporate building cad file along with building structure detail, lift and staircase detail, download free cad file and use for cad presentation.
Uploaded by:
Eiz
Luna
the architecture layout plan of corporate building cad file along with building structure detail, lift and staircase detail, download free cad file and use for cad presentation.
Uploaded by:
Luna