2d cad electrical layout plan of a house in dwg file
Description
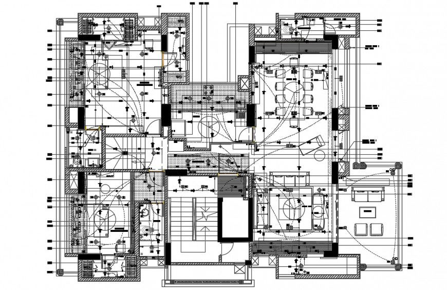
2d cad electrical layout plan of a house in dwg file which includes detail dimension of downlight, strip light, mirror light, picture light, table lamp, chandelier, ceiling fan, wardrobe light, floor light, service socket, distribution board, ac points, etc.
File Type:
DWG
File Size:
1.8 MB
Category::
Electrical
Sub Category::
Electrical Automation Systems
type:
Gold
Uploaded by:
Eiz
Luna

