Gate Design
Description
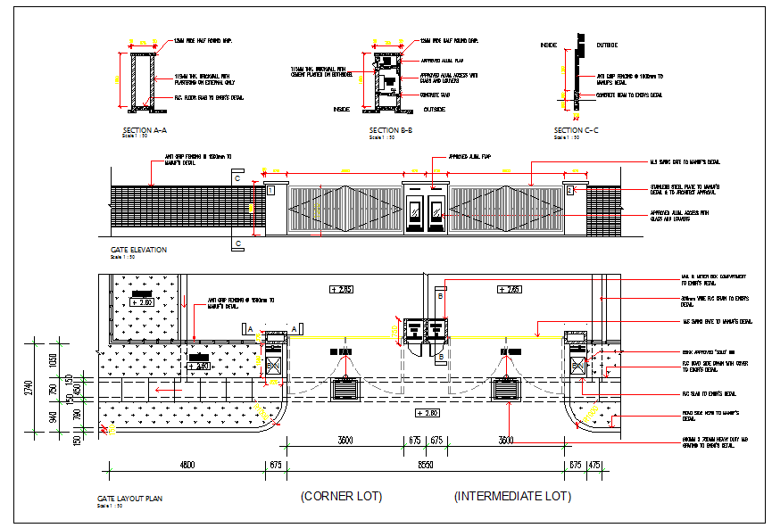
This gate design draw in autocad format. A gate may have a latch to keep it from swinging and a lock for security. Gate Design DWG File, Gate Design Download file, Gate Design Detail.

Uploaded by:
Jafania
Waxy

Uploaded by:
Waxy