2d cad drawing of parapet wall back elevation AutoCAD software
Description
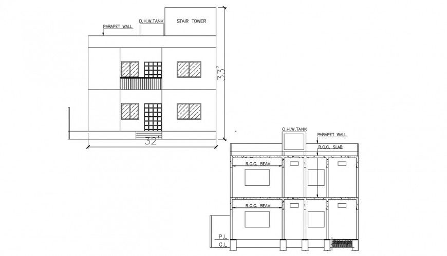
2d cad drawing of paraphet wall back elevation autocaad software detaiuled with wall of rcc slab and beam detailing with exterior elevation with balcony area with windows and door elevation and wall design pattern on other side elevation and hatching done to the paraphet wall and windows and other elevation with wall blocks.
File Type:
DWG
File Size:
539 KB
Category::
Construction
Sub Category::
Construction Detail Drawings
type:
Gold
Uploaded by:
Eiz
Luna
