Kitchen
Description
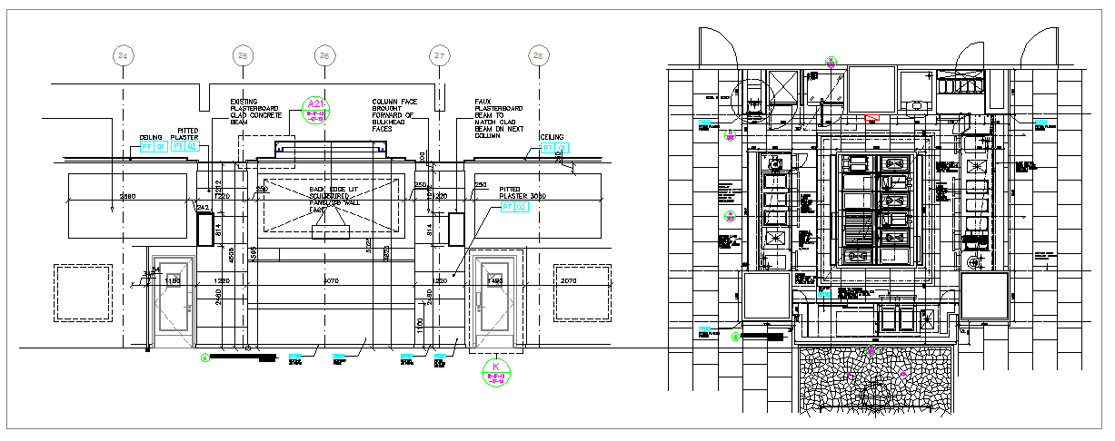
Layout plan of kitchen, inside section plan, out side section plan, much more detailing section A B C & D plan with furniture detail. Kitchen DWG file, Kitchen Detail file, Kitchen Download detail.

Uploaded by:
Neha
mishra

Uploaded by:
mishra