Liquid fuel submitted tank plant cad file
Description
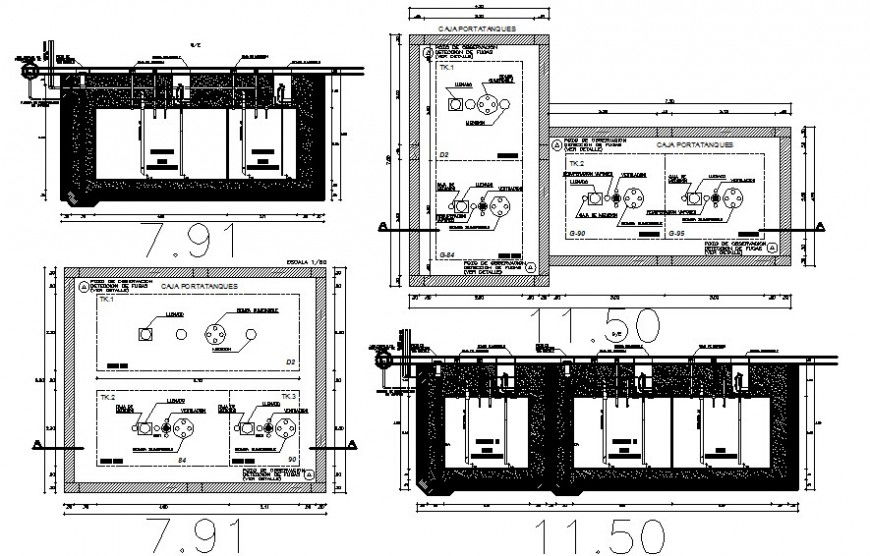
2d cad drawing of Liquid fuel submitted tank plant layout plan and section plan showing that detail of underwater tanks, download free cad file and learn this cad drawing.
Uploaded by:
Eiz
Luna
2d cad drawing of Liquid fuel submitted tank plant layout plan and section plan showing that detail of underwater tanks, download free cad file and learn this cad drawing.
Uploaded by:
Luna