potable water system storage
Description
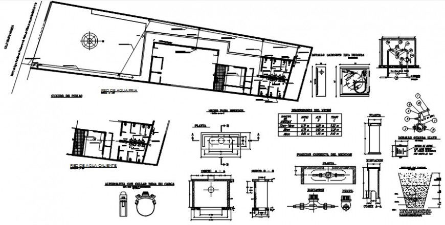
The pipes of the projected hot water network must be thermally protected in all the outer sections.
- Special pieces must be used for all changes in the direction of the pipes.
- The valves and fittings will be bronze class 120 or 170 pounds.
- Water heaters, boilers, thermoses, or other hot water appliances will be installed according to the project specifications and manufacturer's recommendations.
- The MAP or RAP will not be installed if the niche is not built according to its detail, according to ESSBIO S.A.'s technical standard. or according to NCh 2959 of 2000.
- It will be the contractor's responsibility to verify in the field before the work begins, the project in relation to the site, paths, connection to existing networks, likewise all existing facilities that interfere with the projected facilities must be removed in the field.
- Hydraulic connections in the field must not interfere with electrical, gas or other underground installations.
- The project specifications must be faithfully complied with, which is complemented by instructions in the technical standards manual defined in the R.I.D.A.A. (D.S. M.O.P. 50/2003).
- The MAP and / or RAP will be installed according to NCh 2459 Of. 2000 and will be of differentiated thread, glass dome, magnetic transmission and class B.
- Any enclosure that has services will have a general cold and hot water stopcock.
- The contractor at the end of the works must process before ESSBIO S.A. the Certificate of Facilities for the reception of the executed works
File Type:
DWG
File Size:
1020 KB
Category::
Construction
Sub Category::
Construction Detail Drawings
type:
Gold
Uploaded by:
Eiz
Luna

