2 d cad drawing of plain Asad water tank Auto Cad software
Description
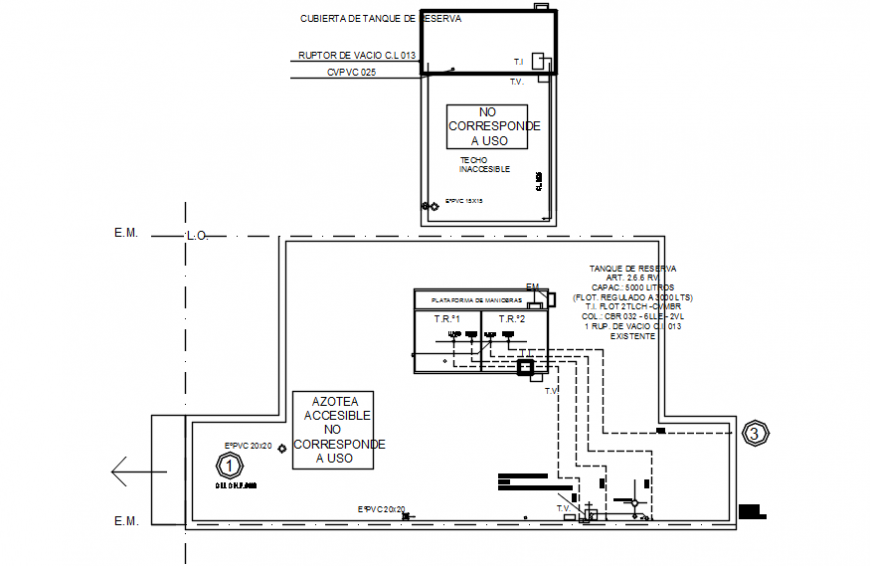
2d cad drawing of plain asad water tank autocad software detailed with construction area been detailed with necessary given description and above all drwings been shown with closet and wall attached construction of water tank and connected pipes.
File Type:
DWG
File Size:
347 KB
Category::
Construction
Sub Category::
Construction Detail Drawings
type:
Gold
Uploaded by:
Eiz
Luna
