Commercial building floor plan cad file
Description
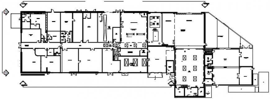
Autocad file of commercial building floor plan showing all the details of area specification, circulation space, wall thickness with door-window openings, etc.
Uploaded by:
Eiz
Luna
Autocad file of commercial building floor plan showing all the details of area specification, circulation space, wall thickness with door-window openings, etc.
Uploaded by:
Luna