Local small office architecture layout plan cad drawing details dwg file
Description
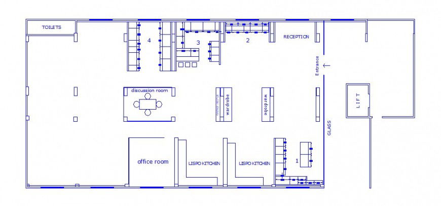
Local small office architecture layout plan cad drawing details that includes a detailed view of reception area with waiting area and cabin and computer lab with counseling room and library and conference room details, manager cabin and meeting room and much more of office details.
Uploaded by:
Eiz
Luna

