Canal Bridge Detail
Description
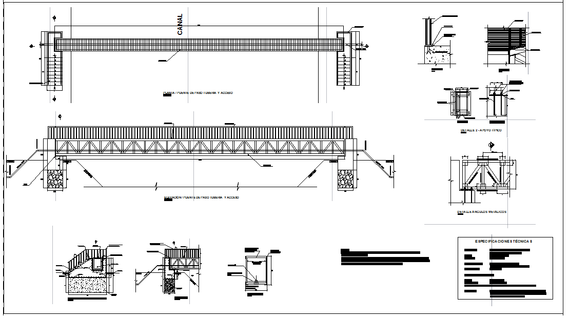
Canal Bridge Detail Design, Canal Bridge Detail DWG file. The connected elements may be stressed from tension, compression, or sometimes both in response to dynamic loads. Canal Bridge Detail DWG file.

Uploaded by:
Harriet
Burrows

