Foundation plan, staircase and constructive structure details of hotel building dwg file
Description
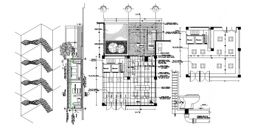
Foundation plan, staircase and constructive structure details of hotel building that includes a detailed view of toilet sheet installation details, foundation plan details, staircase section and constructive structure details provided. wall construction, measures and dimensions details and much more of hotel details.
Uploaded by:
Eiz
Luna

