Septic Tank
Description
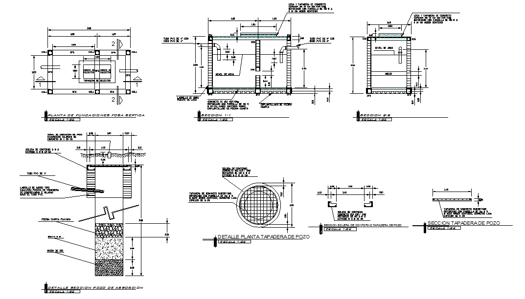
Septic Tank Design, Septic Tank Download file, Also, some septic tank designs have a second stage where the effluent from the anaerobic first stage is aerated before it drains into the seepage field.. Septic Tank DWG File, Septic Tank Detail.
File Type:
DWG
File Size:
188 KB
Category::
Structure
Sub Category::
Section Plan CAD Blocks & DWG Drawing Models
type:
Gold

Uploaded by:
Jafania
Waxy

