First, second, third and fourth floor plan details of luxuries hotel dwg file
Description
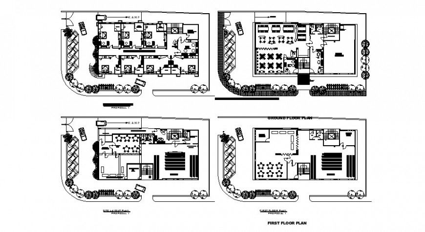
First, second, third and fourth floor plan details of luxuries hotel that includes a detailed view of parking area with outdoor garden, reception area with waiting lounge, dining area with banquet hall and kitchen, cleaning department with staff room and sanitary facilities, furniture details and interior details, laundry department, spa and gymdetails, back yard garden and service area, bedrooms like honeymoon suits and double bedrooms etc, cleaning departments, cafeteria with bar and terrace, elevators and much more of hotel project.

Uploaded by:
Eiz
Luna

